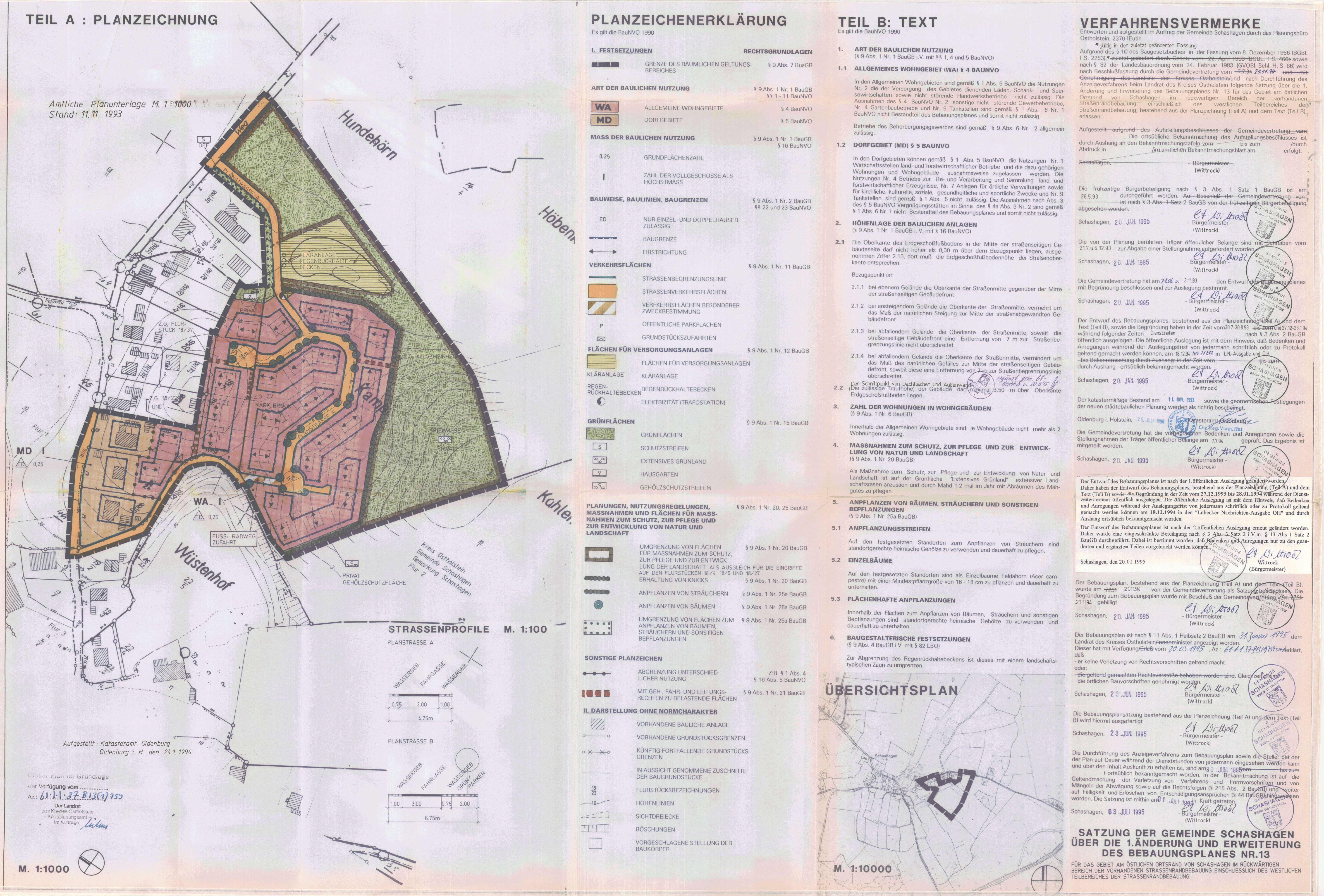
jpgBebauungsplan 13 1.Änderung
pdfBebauungsplan 13 1.Änderung
jpgBebauungsplan 13 2.Änderung
pdfBebauungsplan 13 2.Änderung
jpgBebauungsplan 13 Teilaufhebung
pdfBebauungsplan 13 Teilaufhebung
Alle Informationen ohne Gewähr.